Reference: 33929205

£1,395,000

Dukes Avenue, Kingston Upon Thames

United Kingdom

bed 5
bath 2

Share this property

Property Description

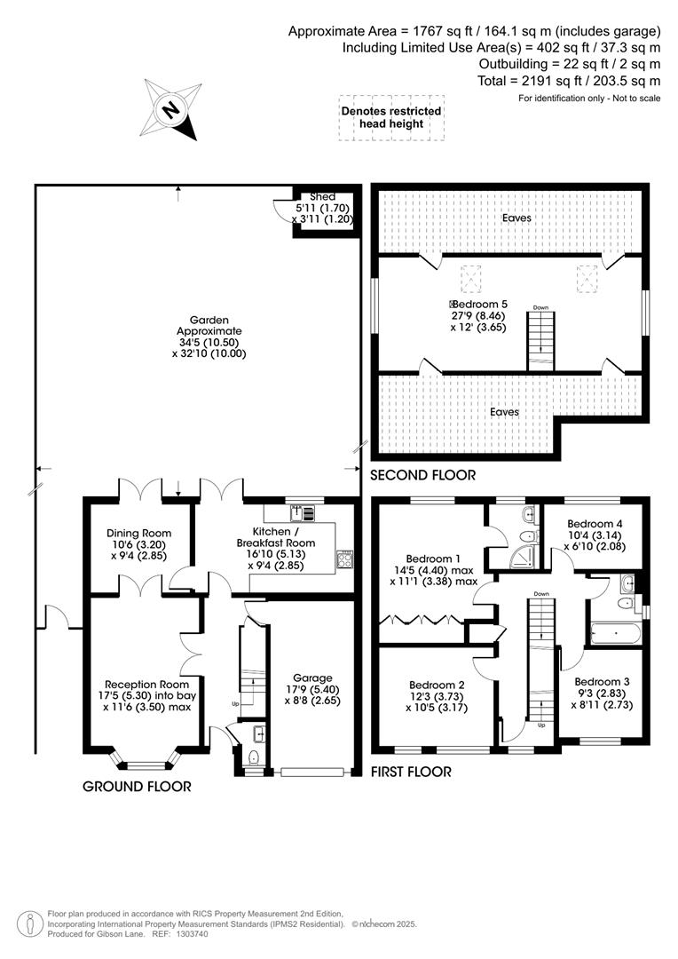
Located in this desirable corner of Dukes Avenue, this substantial detached family home offers an exceptional living experience. Built in 1996, the property boasts a generous layout featuring two spacious reception rooms that provide plenty of space for relaxation and entertaining, and a well equipped kitchen/breakfast room overlooking the rear garden. With five well-proportioned bedrooms and two bathrooms, this home is perfect for families seeking comfort and convenience.

One of the standout features of this home is the ample off-street parking, accommodating up to three vehicles plus an integral garage, which is a rare find in this sought-after location.

The beautifully maintained south/west facing rear garden is a true oasis, ideal for enjoying sunny afternoons and hosting gatherings with family and friends. Additionally, there is significant potential to extend the property, allowing you to tailor it to your specific needs and preferences.

Positioned conveniently for local schools, shops, and bus routes, this home is perfect for families looking for a vibrant community atmosphere. With its blend of space, comfort and potential, this property is an excellent opportunity for those seeking a family home in Kingston Upon Thames. Don't miss the chance to make this delightful house your new home.

Dukes Avenue is a sought after road situated a short distance from the River Thames and within close proximity of the 2,400 acre Richmond Park. This property is ideally positioned between Kingston and Richmond town centres with their extensive range of shops, restaurants and overland & underground stations. The local shops of Ham Parade are just moments away and Ham Common is also close by. The standard of schooling in the immediate area is excellent within both the private and state sectors and these include: The German School, Grey Court, The Kingston Academy and Tiffin Girls School.

Property Features

  • Potential to Extend (STPP)
  • Sought After North Kingston Location
  • EPC Rating C
  • Council Tax Band G
  • Substantial five bedroom family home
  • Impressive accommodation in excess of 1,700sqft
  • Beautiful South/West facing rear garden
  • Integral garage and off street parking for three cars
  • Well positioned for local schools & bus routes
  • Shops and amenities of Ham Parade close by